Northern Virginia developer WestDulles Properties is taking a second crack at the Iron Horse Technology Park straddling the Ashland-Hanover line after Hanover rejected it in December.
People are also reading…
A rendering of the revised concept plan for the Iron Horse Technology Park straddling the Ashland-Hanover line. It sits off East Patrick Henry Road.
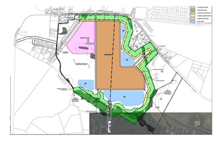
A revised site plan for the Iron Horse Technology Park straddling the Ashland-Hanover line. It includes an area for data centers in the center, substations, stormwater ponds and buffer zones.
Photos: Saturday's NASCAR action at Richmond Raceway
Bubba Wallace competes in the NASCAR Cook Out 400 on August 16, 2025, in Henrico, Va.
Members of the NASCAR Cook Out 400 on August 16, 2025, in Henrico, Va.
Ryan Preece competes in the NASCAR Cook Out 400 on August 16, 2025, in Henrico, Va.
Denny Hamlin competes in the NASCAR Cook Out 400 on August 16, 2025, in Henrico, Va.
A NASCAR official watches the NASCAR Cook Out 400 on August 16, 2025, in Henrico, Va.
Bubba Wallace competes in the NASCAR Cook Out 400 on August 16, 2025, in Henrico, Va.
A Kaulig Racing pit crew member uses a blowtorch on a tire before the NASCAR Cook Out 400 on August 16, 2025, in Henrico, Va.
Pit crew members stretch before the NASCAR Cook Out 400 on August 16, 2025, in Henrico, Va.
Chris Buescher puts on his ear protection before competing in the NASCAR Cook Out 400 on August 16, 2025, in Henrico, Va.
Race cars follow the pace car during the warm up lap of the NASCAR Cook Out 400 on August 16, 2025, in Henrico, Va.
Bubba Wallace leads while Christopher Bell is close behind during the NASCAR Cook Out 400 on August 16, 2025, in Henrico, Va.
Tyler Reddick competes in the NASCAR Cook Out 400 on August 16, 2025, in Henrico, Va.
A person skydives with the American flag before the NASCAR Cook Out 400 on August 16, 2025, in Henrico, Va.
Planes fly over the Richmond Raceway before the NASCAR Cook Out 400 on August 16, 2025, in Henrico, Va.
Attendees of the NASCAR Cup Series Cook Out 400 wait by the red carpet to meet drivers before the start of Saturday night’s race.
Fireworks launch as cars rush past during the early laps of the Cup Series Cook Out 400 Saturday, August 16, at the Richmond Raceway.
Attendees of the NASCAR Cup Series Cook Out 400 wait in the stands for the race to start Saturday, August 16, at the Richmond Raceway.
Kyle Busch gets into his car before the Cook Out 400 at Richmond Raceway.
Cars rush past during the early laps of the Cup Series Cook Out 400 Saturday, August 16, at the Richmond Raceway.
Attendees of the NASCAR Cup Series Cook Out 400 wait in the stands for the race to start Saturday, August 16, at the Richmond Raceway.
Attendees of the NASCAR Cup Series Cook Out 400 enjoy tailgates ahead of the race’s start Saturday, August 16, at the Richmond Raceway.
Crew members wait next to the car of Shane van Gisbergen before the NASCAR Cup Series’ Cook Out 400 on Saturday at Richmond Raceway.
Cars rush past during the early laps of the Cup Series Cook Out 400 Saturday, August 16, at the Richmond Raceway.
Attendees of the NASCAR Cup Series Cook Out 400 wait in the stands for the race to start Saturday, August 16, at the Richmond Raceway.
Attendees of the NASCAR Cup Series Cook Out 400 travel to the Fairgrounds ahead of the start of the race Saturday, August 16, at the Richmond Raceway.
Emmett Stoi, 6, watches as his toy race car flies through the air before launching another one Saturday before the Cook Out 400 at Richmond Raceway.
Carson Hocevar signs autographs before Saturday night’s race at Richmond Raceway.
Emmett Stow, 6, and Anthony Cross, 6, play with toy race cars Saturday in the infield of Richmond Raceway. The Cook Out 400, the penultimate race of the NASCAR Cup regular-season schedule, ended after press time. READ ALL ABOUT IT: Find out the winner of the Cup race and see dozens more photos from the weekend’s action at the racetrack by aiming your cellphone camera at the QR code and clicking the link. Digital access is included in your subscription. MORE COVERAGE Page C1: Corey Heim claims his seventh victory of the NASCAR Craftsman Truck Series late Friday night. Page C3: More photos from this weekend.
Democratic candidates Ghazala Hashmi (lieutenant governor) and Abigail Spanberger (governor) watch as drivers walk down the red carpet before the Cook Out 400.
Alex Bowman signs autographs while walking down the red carpet at the NASCAR Cook Out 400 on August 16, 2025, in Henrico, Va.
Denny Hamlin competes in the NASCAR Cook Out 400 on August 16, 2025, in Henrico, Va.
Austin Dillon celebrates winning the NASCAR Cook Out 400 on August 16, 2025, in Henrico, Va.
Race car drivers compete in the NASCAR Cook Out 400 on August 16, 2025, in Henrico, Va.
Cole Custer stops for a pit stop during the NASCAR Cook Out 400 on August 16, 2025, in Henrico, Va.
Austin Dillon celebrates winning the NASCAR Cook Out 400 on August 16, 2025, in Henrico, Va.
Ryan Blaney and Austin Dillon battle for position in Saturday night's NASCAR Cup race at Richmond Raceway.
Alex Bowman competes in the NASCAR Cook Out 400 on August 16, 2025, in Henrico, Va.
Ryan Blaney, Austin Dillon and Cody Ware battle for track position Saturday night at Richmond Raceway. Blaney and Dillon battled for the victory in the later laps.
Austin Dillon battles Ryan Preece for position Saturday night at Richmond Raceway. Dillon led 107 laps in his victory.
Chase Briscoe stops for a pit stop NASCAR Cook Out 400 on August 16, 2025, in Henrico, Va.
Charles Denike sits in the top of the pit box during NASCAR Cook Out 400 on August 16, 2025, in Henrico, Va.
Sean Jones (804) 649-6911
